Однокімнатна квартира у ЖК Скай Сіті
Однокімнатна квартира у ЖК Скай Сіті
ціна: 39000 $
Характеристики
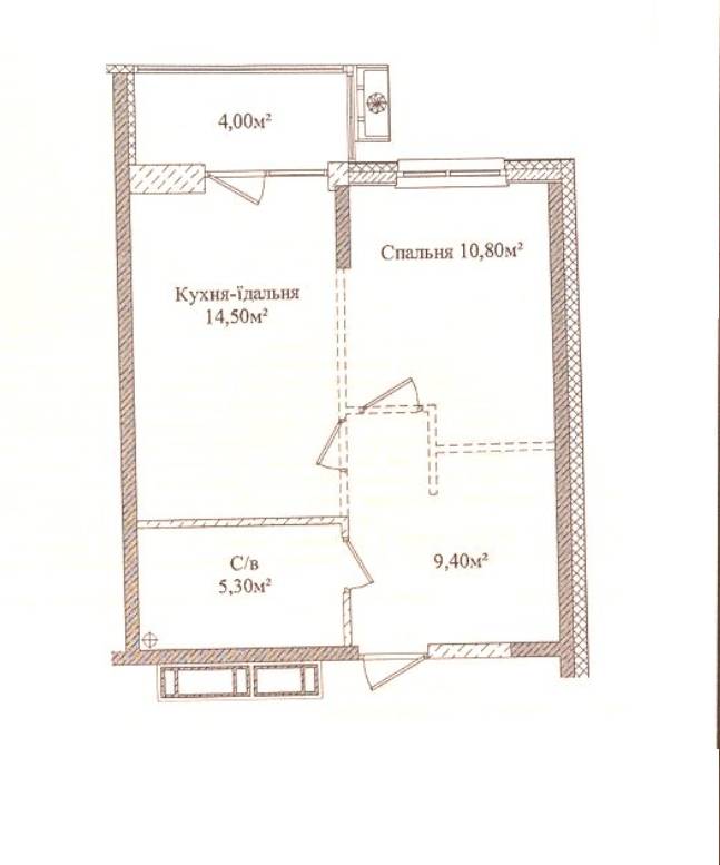
Комнат
1
Общая
44 м2
Жилая
10.8 м2
Кухня
14.5 м2
Этаж
7
Этажность
15
Контакти менеджерів з продажу
-
вул. Ак. Корольова, 33,
Запит інформації по об'єкту
На мапі

Опис
У продажі велика 1-кімнатна квартира в одному із найкращих ЖК в місті Одеса. Квартира з раціональним плануванням: окрема кімнатна та простора кухня з виходом на засклену лоджію. Внутрішні стіни - монолітні залізобетоні. Підлоги всіх приміщень, крім санвузлів - виконана цементно-піщана стяжка і звукоізоляція Акуфлекс. Заведені всі необхідні комунікації у квартиру. Встановлені кошики під кондиціонери. У будинку три ліфти. Охорона. Закрита придомова територія. Зручна транспортна розв'язка та вся необхідна інфраструктура в шаговій доступності. Телефонуйте.







